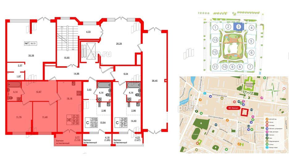
3е комнатная квартира 58.45 м², № 114

Квартира в ЖК «Консул», 2 комнатная, 58.45 м², 1 этаж
Квартира в ЖК «Консул», 2 комнатная, 58.45 м², 1 этаж
58,45 м² 23,15 м² 19,16 м² 2.7 м 1 из 9
Общая площадь Площадь комнат Площадь кухни Высота потолка Этаж
Тип санузла:  Совмещенный Есть балкон Отделка — 
Нет
Выберите условия покупки
Перейти к сравнению