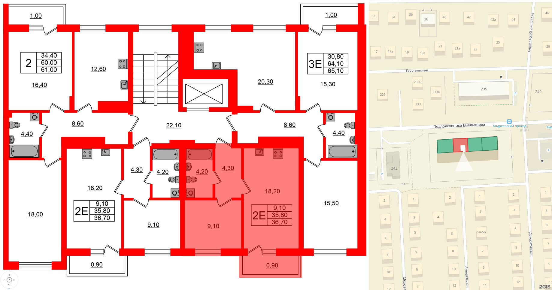
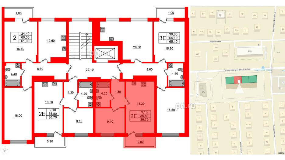
2е комнатная квартира 36.7 м², № 49
ЖК Астория , Астория
Срок сдачи — IV кв. 2026 г.
| 36,70 м² | 9,10 м² | 18,20 м² | 2.7 м | 5 из 8 |
| Общая площадь | Площадь комнат | Площадь кухни | Высота потолка | Этаж |
|---|
| Тип санузла:  | Совмещенный | Есть балкон | Отделка — |
Нет
|
|---|
Выберите условия покупки
Забронируйте объект по телефону
Онлайн-бронирование временно недоступно