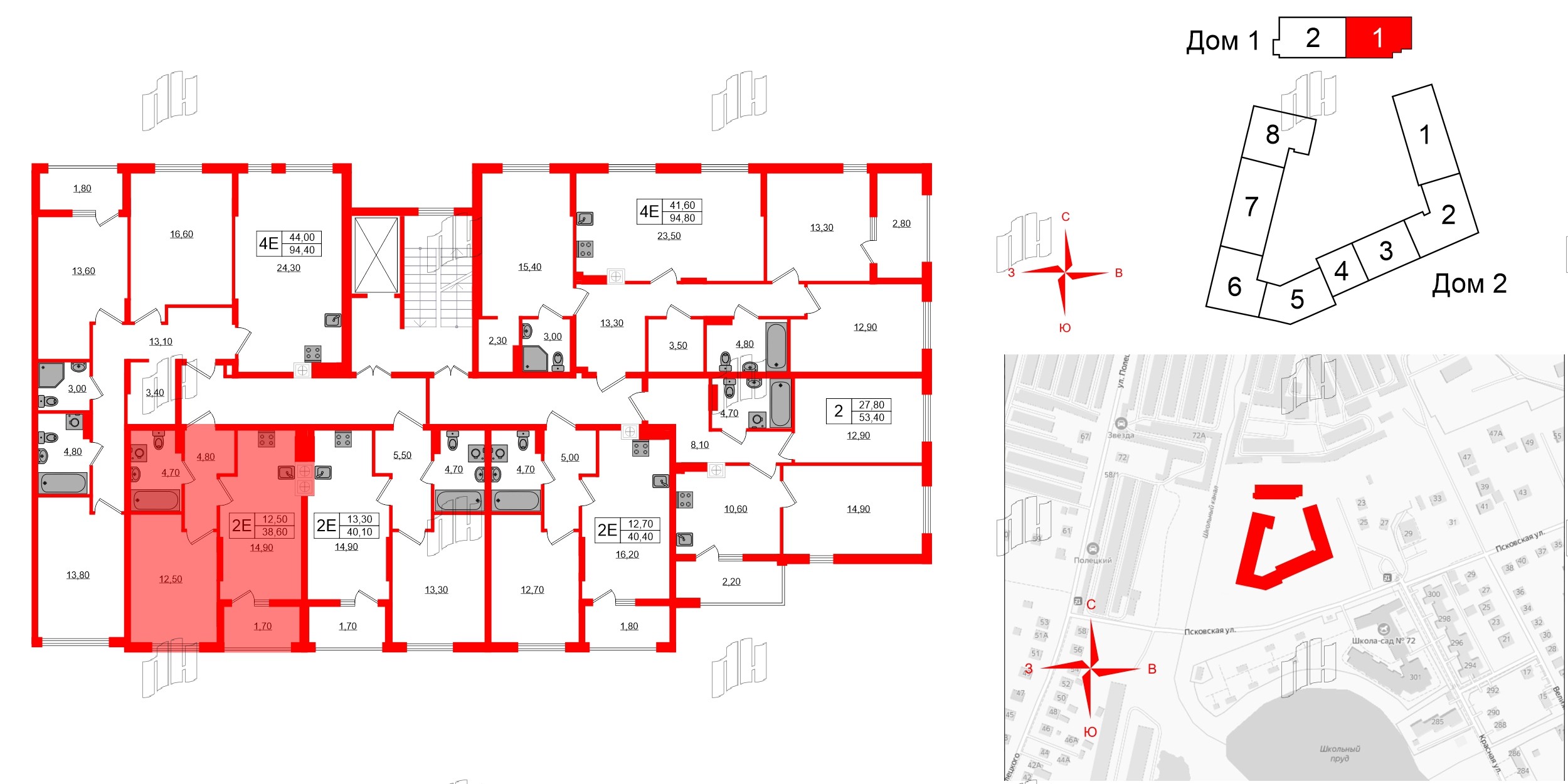
2е комнатная квартира 38.6 м², № 16
ЖК «Дом на Красной» , Дом на Красной 1 дом
Срок сдачи — IV кв. 2026 г.
| 38,60 м² | 12,50 м² | 14,90 м² | 2.7 м | 3 из 8 |
| Общая площадь | Площадь комнат | Площадь кухни | Высота потолка | Этаж |
|---|
| Тип санузла:  | Совмещенный | Лоджия | Отделка — |
Нет
|
|---|
Выберите условия покупки
Забронируйте объект по телефону
Онлайн-бронирование временно недоступно