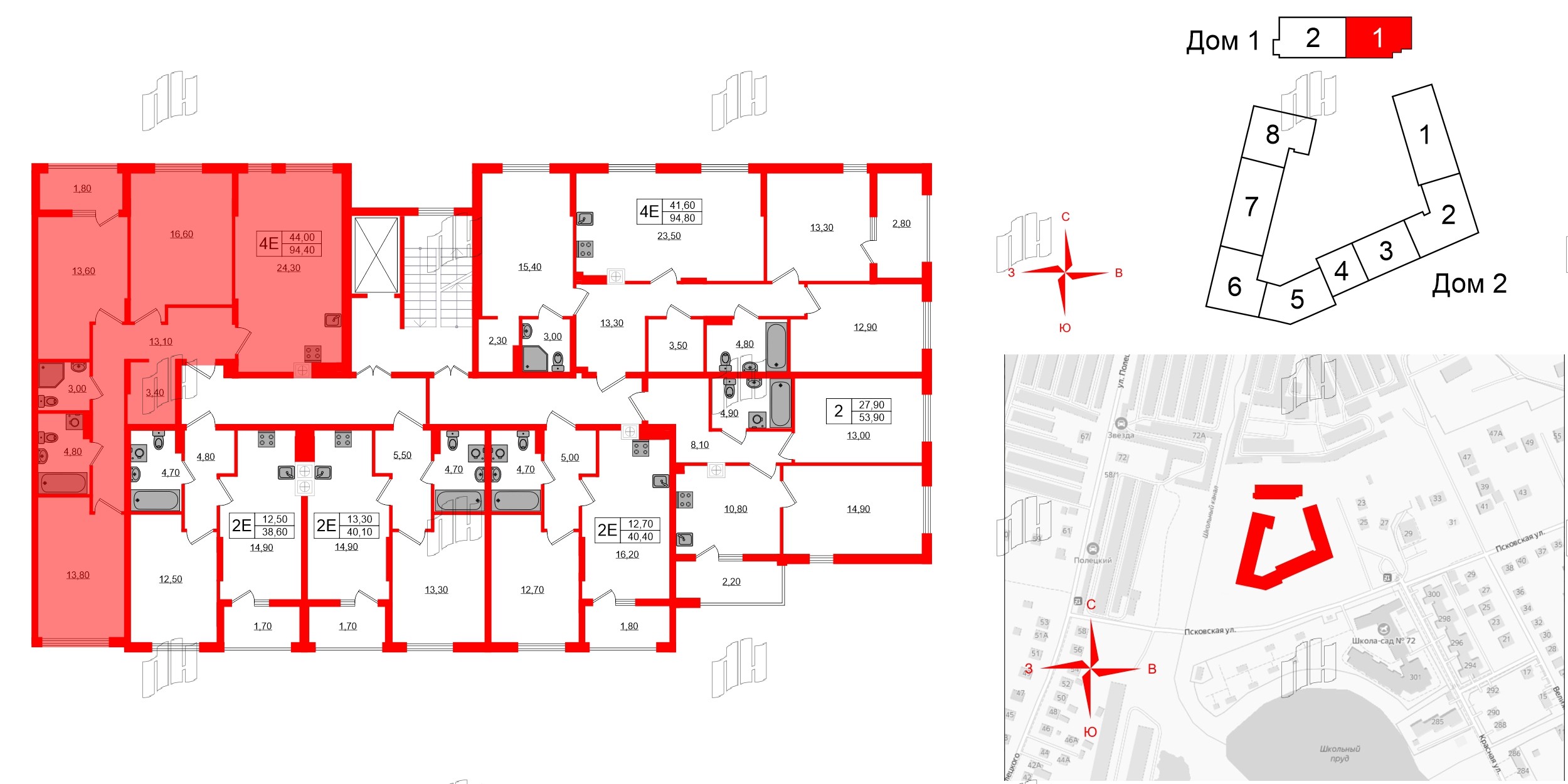
4е комнатная квартира 94.4 м², № 11
ЖК «Дом на Красной» , Дом на Красной 1 дом
Срок сдачи — IV кв. 2026 г.
| 94,40 м² | 44,00 м² | 24,30 м² | 2.7 м | 2 из 8 |
| Общая площадь | Площадь комнат | Площадь кухни | Высота потолка | Этаж |
|---|
| Два санузла | Лоджия | Отделка — |
Нет
|
|---|
Выберите условия покупки
Забронируйте объект по телефону
Онлайн-бронирование временно недоступно