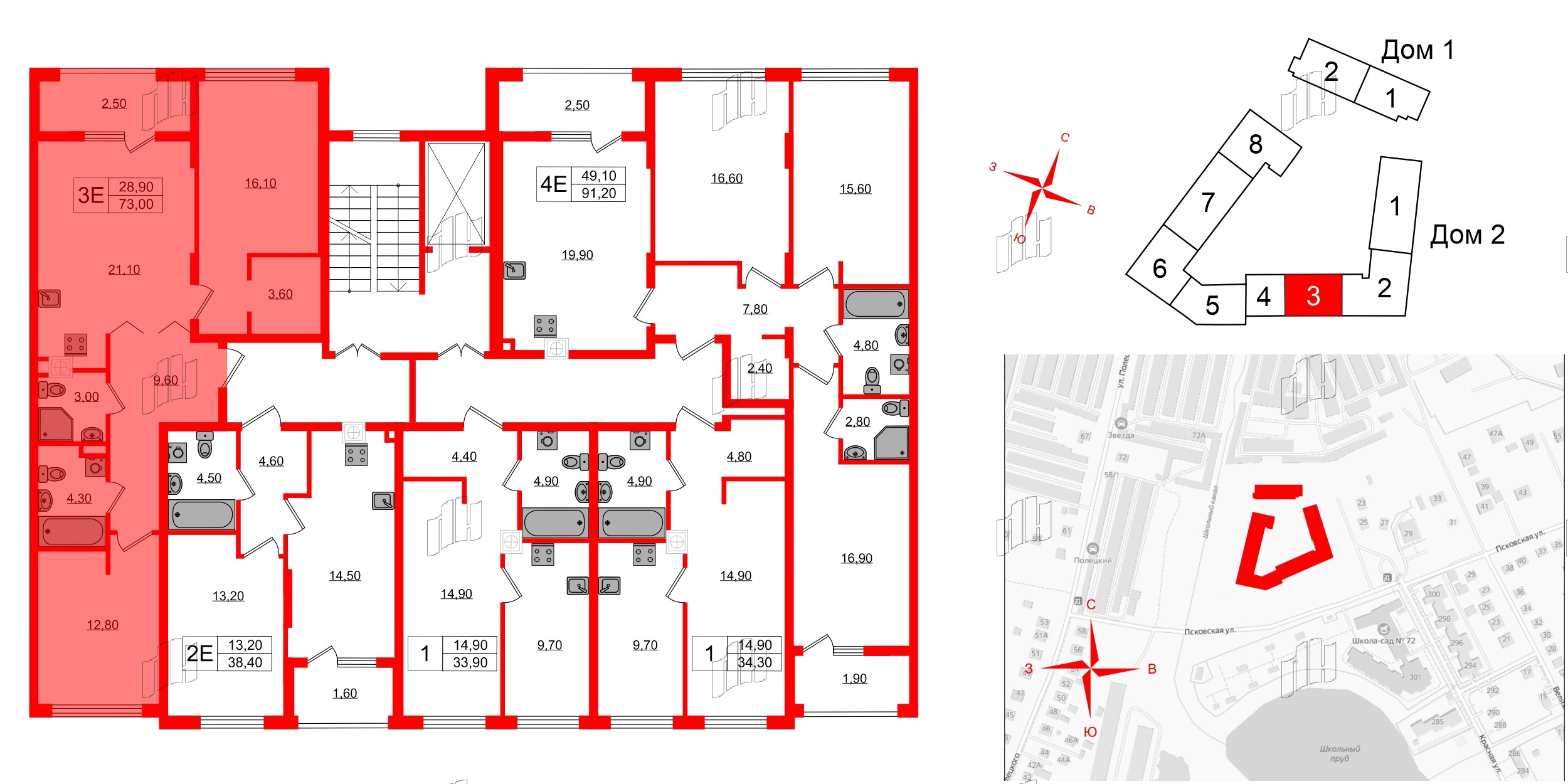
2 комнатная квартира 73 м², № 147
ЖК «Дом на Красной» , Дом на Красной 2 дом
Срок сдачи — IV кв. 2026 г.
| 73,00 м² | 28,90 м² | 21,10 м² | 2.7 м | 2 из 8 |
| Общая площадь | Площадь комнат | Площадь кухни | Высота потолка | Этаж |
|---|
| Два санузла | Лоджия | Отделка — |
Нет
|
|---|
Выберите условия покупки
Забронируйте объект по телефону
Онлайн-бронирование временно недоступно