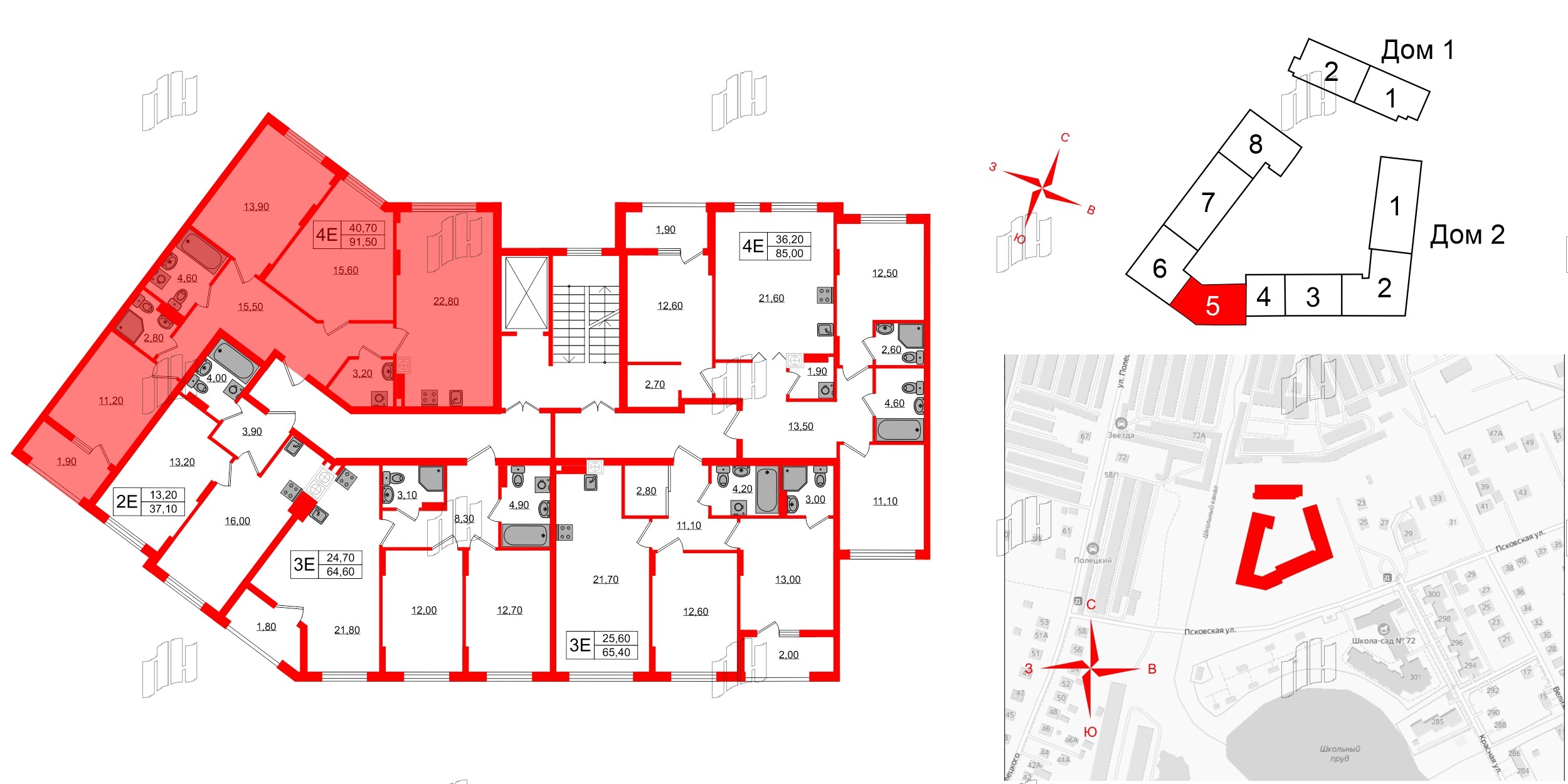
4е комнатная квартира 91.5 м², № 215
ЖК «Дом на Красной» , Дом на Красной 2 дом
Срок сдачи — IV кв. 2026 г.
| 91,50 м² | 40,70 м² | 22,80 м² | 2.7 м | 2 из 8 |
| Общая площадь | Площадь комнат | Площадь кухни | Высота потолка | Этаж |
|---|
| Три санузла | Лоджия | Отделка — |
Нет
|
|---|
Выберите условия покупки
Забронируйте объект по телефону
Онлайн-бронирование временно недоступно