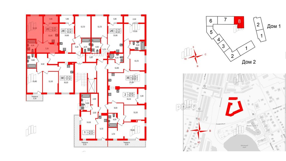
1 комнатная квартира 38.4 м², № 422
ЖК «Дом на Красной» , Дом на Красной 2 дом
Срок сдачи — IV кв. 2026 г.
| 38,40 м² | 14,30 м² | 10,80 м² | 2.7 м | 8 из 8 |
| Общая площадь | Площадь комнат | Площадь кухни | Высота потолка | Этаж |
|---|
| Тип санузла:  | Совмещенный | Лоджия | Отделка — |
Нет
|
|---|
Выберите условия покупки
Забронируйте объект по телефону
Онлайн-бронирование временно недоступно