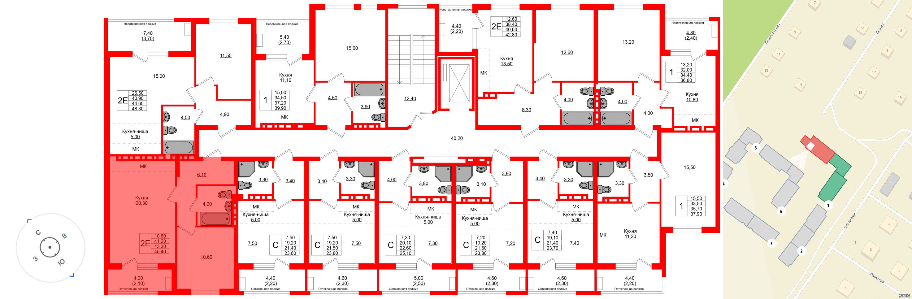
2е комнатная квартира 43.3 м², № 100
ЖК Кроны и Волны , Дом 1 Кроны и Волны
Срок сдачи — I кв. 2028 г.
Условия покупки
Старт продаж Кроны и Волны! |
*Подробнее
Застройщик ООО «Специализированный застойщик «НОВЫЙ ГОРОД». ЖК «Кроны и Волны»: Калининградская область, Зеленоградский р-н, пос.Горбатовка, ул.Лесопарковая. Кад.номер ЗУ 39:05:040603:3226. Проектная декларация на сайте ЕИСЖС (https://наш.дом.рф). Фактические элементы благоустройства, а также материалы отделки фасада могут отличаться от изображенных. Подробности на setlestate.com
Квартира в рассрочку на 2 года |
*Подробнее
Выберите условия покупки
Забронируйте объект по телефону
Онлайн-бронирование временно недоступно