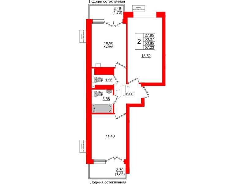
2 комнатная квартира 53.65 м², № 19
ЖК Лэйк Сити-11 , Лэйк Сити-11
Срок сдачи — IV кв. 2026 г.
| 53,65 м² | 27,95 м² | 10,98 м² | 3 м | 4 из 6 |
| Общая площадь | Площадь комнат | Площадь кухни | Высота потолка | Этаж |
|---|
| Два санузла | Две лоджии | Отделка — |
Нет
|
|---|
Выберите условия покупки
Забронируйте объект по телефону
Онлайн-бронирование временно недоступно