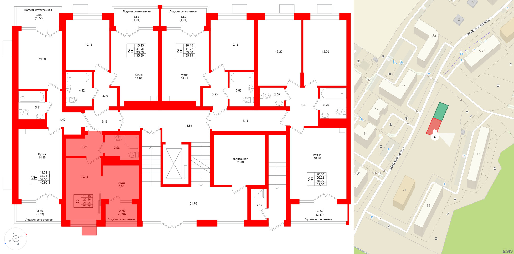
Студия 23.94 м², № 1
ЖК Lake City-4 , Lake City-4
Срок сдачи — III кв. 2027 г.
| 23,94 м² | 10,13 м² | 5,61 м² | 3 м | 1 из 6 |
| Общая площадь | Площадь комнат | Площадь кухни | Высота потолка | Этаж |
|---|
| Тип санузла:  | Совмещенный | Лоджия | Отделка — |
Нет
|
|---|
Условия покупки
|
*Подробнее
Выберите условия покупки
Забронируйте объект по телефону
Онлайн-бронирование временно недоступно