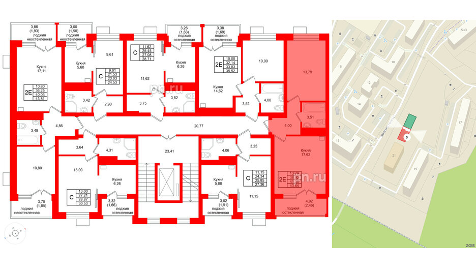
2е комнатная квартира 40.03 м², № 8

Квартира в ЖК Lake City-9, 1 комнатная, 40.03 м², 2 этаж
Квартира в ЖК Lake City-9, 1 комнатная, 40.03 м², 2 этаж
40,03 м² 10,80 м² 17,11 м² 3 м 2 из 7
Общая площадь Площадь комнат Площадь кухни Высота потолка Этаж
Тип санузла:  Совмещенный Две лоджии Отделка — 
"Nord Line +" Silver
Выберите условия покупки
Перейти к сравнению