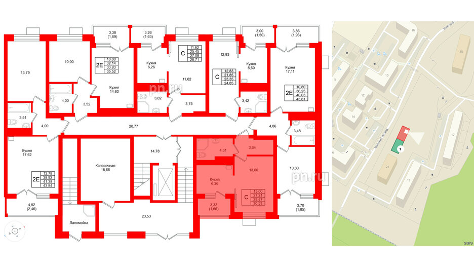
Студия 28.87 м², № 54

Квартира в ЖК Лэйк Сити-9, студия, 28.87 м², 1 этаж
Квартира в ЖК Лэйк Сити-9, студия, 28.87 м², 1 этаж
28,87 м² 13,00 м² 6,26 м² 3 м 1 из 7
Общая площадь Площадь комнат Площадь кухни Высота потолка Этаж
Тип санузла:  Совмещенный Лоджия Отделка — 
Нет
Выберите условия покупки
Перейти к сравнению