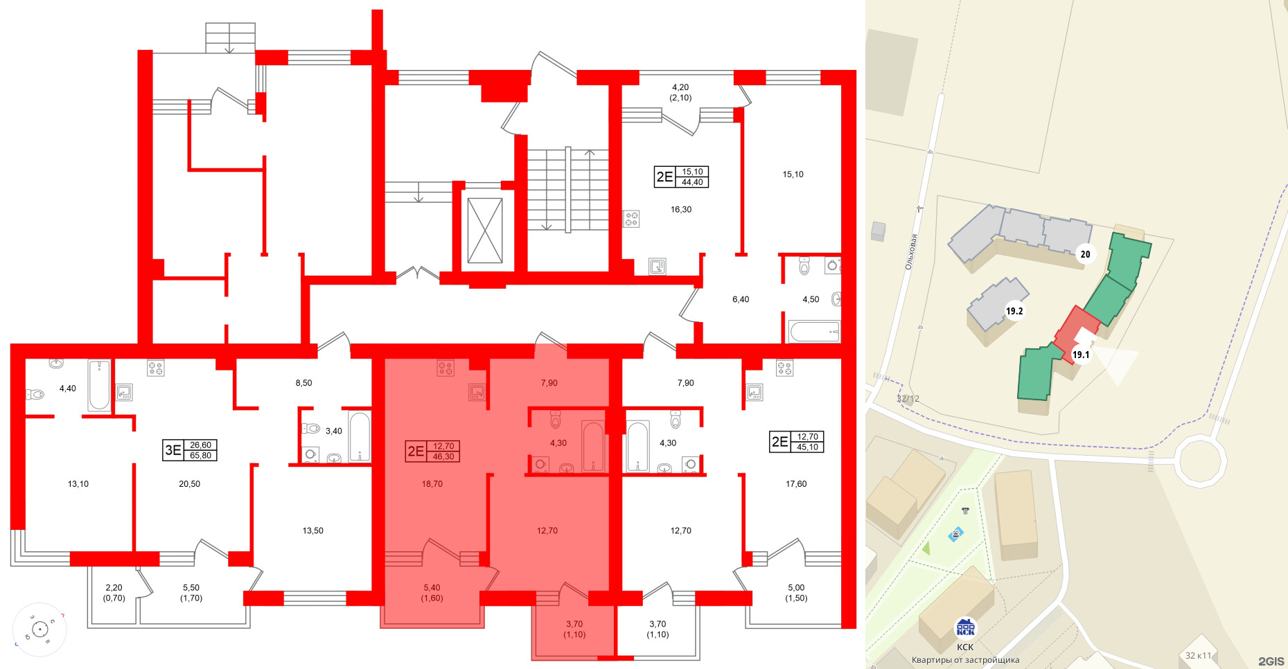
2е комнатная квартира 46.3 м², № 47
ЖК Морена , Дом 19.1
Срок сдачи — IV кв. 2027 г.
| 46,30 м² | 12,70 м² | 18,70 м² | 3 м | 1 из 5 |
| Общая площадь | Площадь комнат | Площадь кухни | Высота потолка | Этаж |
|---|
| Тип санузла:  | Совмещенный | Два балкона | Отделка — |
Нет
|
|---|
Выберите условия покупки
Забронируйте объект по телефону
Онлайн-бронирование временно недоступно