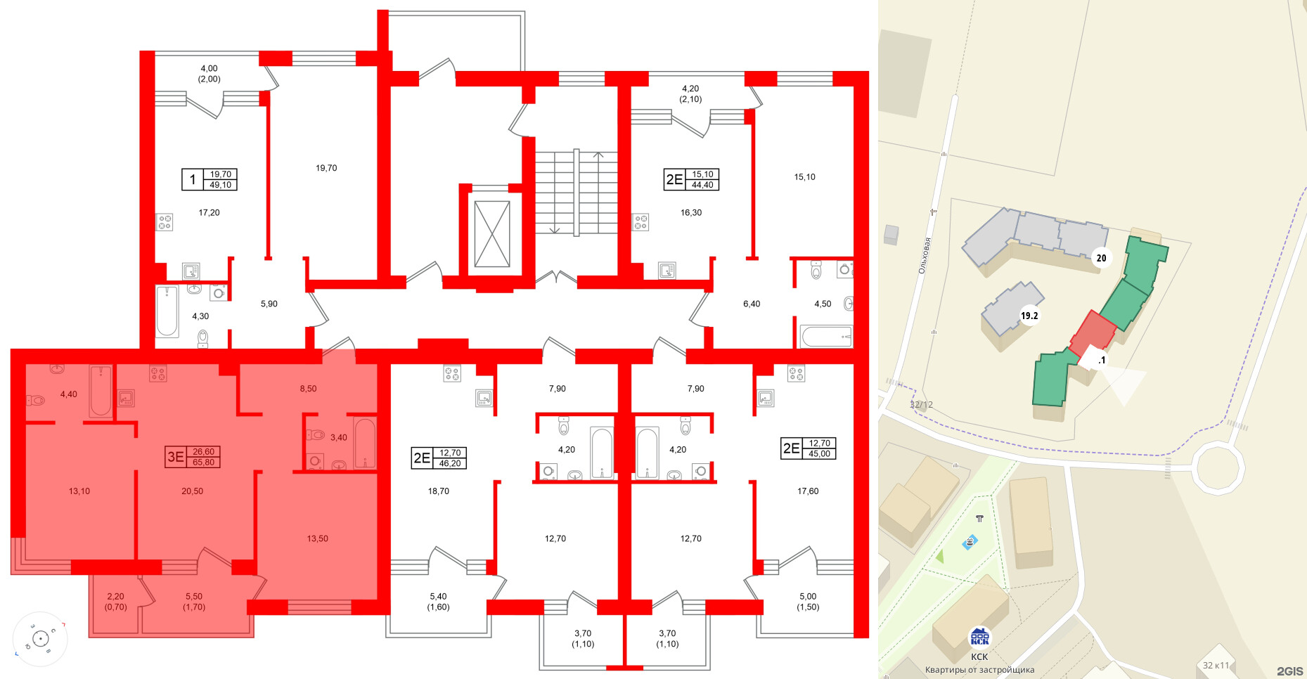
3е комнатная квартира 65.8 м², № 67
ЖК Морена , Дом 19.1
Срок сдачи — IV кв. 2027 г.
| 65,80 м² | 26,60 м² | 20,50 м² | 3 м | 5 из 5 |
| Общая площадь | Площадь комнат | Площадь кухни | Высота потолка | Этаж |
|---|
| Два санузла | Два балкона | Отделка — |
Нет
|
|---|
Выберите условия покупки
Забронируйте объект по телефону
Онлайн-бронирование временно недоступно