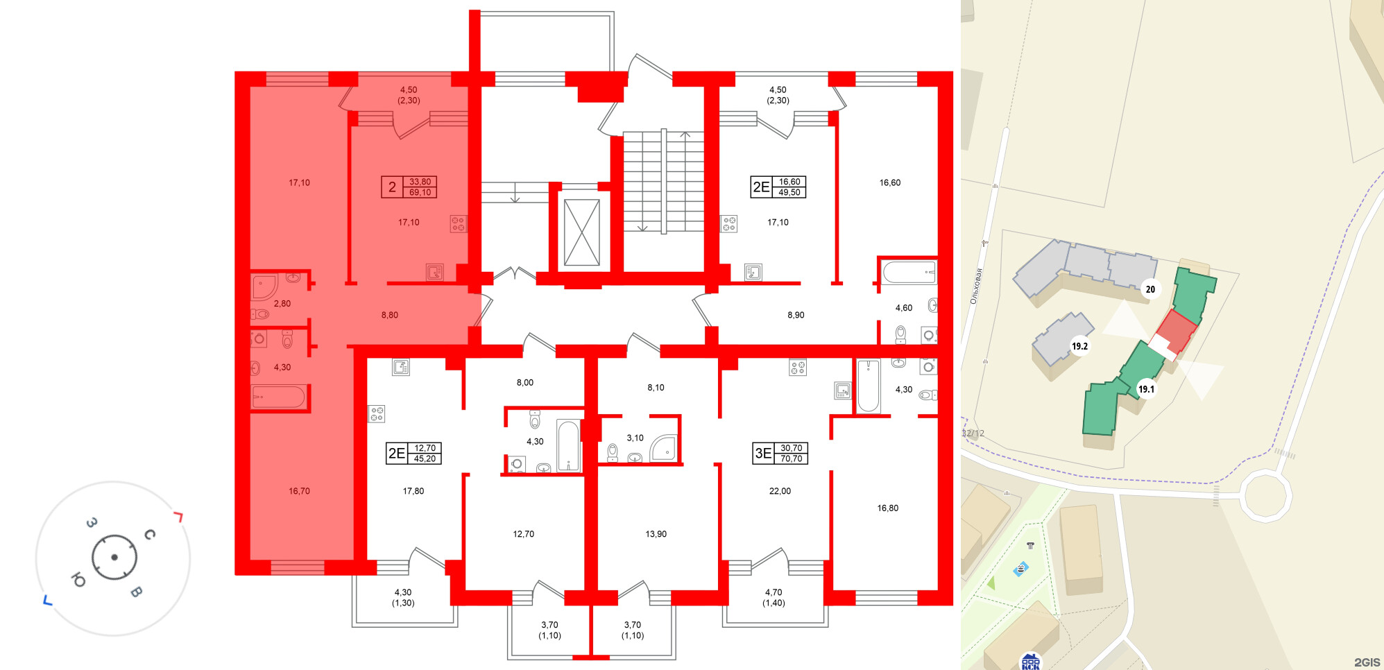
2 комнатная квартира 69.1 м², № 28
ЖК Морена , Дом 19.1
Срок сдачи — IV кв. 2027 г.
| 69,10 м² | 33,80 м² | 17,10 м² | 3 м | 1 из 5 |
| Общая площадь | Площадь комнат | Площадь кухни | Высота потолка | Этаж |
|---|
| Два санузла | Лоджия | Отделка — |
Нет
|
|---|
Выберите условия покупки
Забронируйте объект по телефону
Онлайн-бронирование временно недоступно