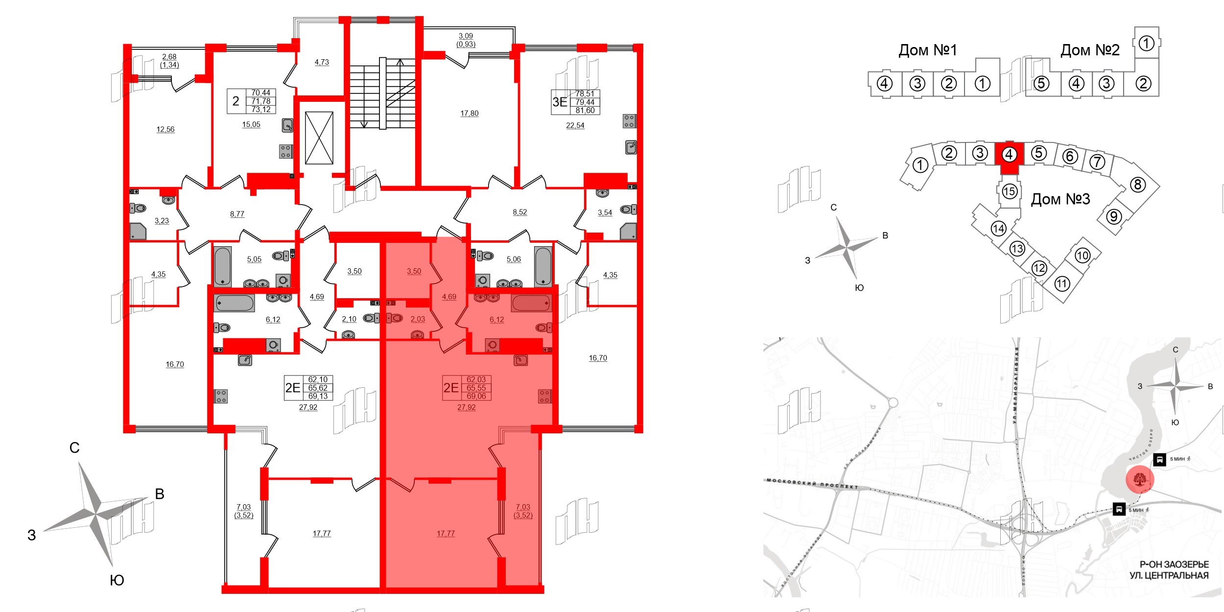
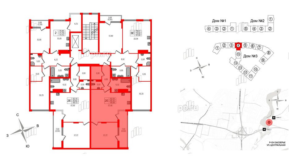
2е комнатная квартира 65.55 м², № 66
ЖК «Расцвет Парк» , Расцвет Парк дом №3
Срок сдачи — IV кв. 2026 г.
| 65,55 м² | 17,77 м² | 27,92 м² | от 2.7 до 3.3 м | 3 из 6 |
| Общая площадь | Площадь комнат | Площадь кухни | Высота потолка | Этаж |
|---|
| Два санузла | Терраса | Отделка — |
Нет
|
|---|
Выберите условия покупки
Забронируйте объект по телефону
Онлайн-бронирование временно недоступно