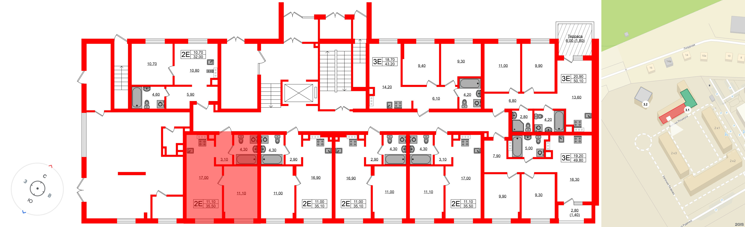
2е комнатная квартира 35.5 м², № 67
ЖК «Ривер Парк» , Речной парк-3.1
Срок сдачи — IV кв. 2026 г.
| 35,50 м² | 11,10 м² | 17,00 м² | 2.75 м | 1 из 7 |
| Общая площадь | Площадь комнат | Площадь кухни | Высота потолка | Этаж |
|---|
| Тип санузла:  | Совмещенный | Балкон - нет | Отделка — |
Нет
|
|---|
Выберите условия покупки
Забронируйте объект по телефону
Онлайн-бронирование временно недоступно