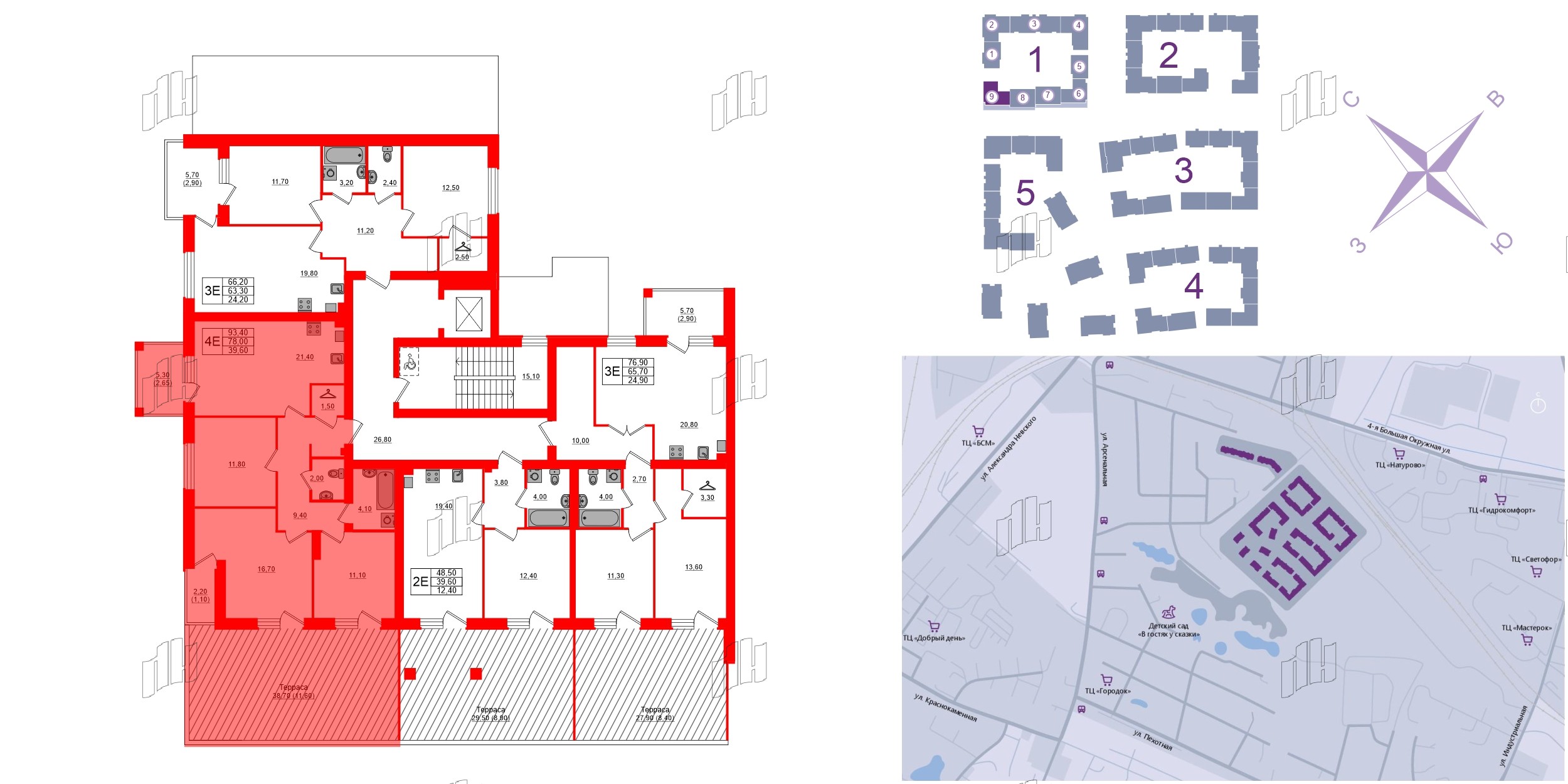
4е комнатная квартира 98.7 м², № 149
ЖК «Сиреневый бульвар» , Сиреневый бульвар - 1.1
Срок сдачи — Сдан
| 98,70 м² | 39,60 м² | 21,40 м² | 2.7 м | 2 из 4 |
| Общая площадь | Площадь комнат | Площадь кухни | Высота потолка | Этаж |
|---|
| Тип санузла:  | Совмещенный | Терраса + балкон + лоджия | Отделка — |
Нет
|
|---|
Выберите условия покупки
Забронируйте объект по телефону
Онлайн-бронирование временно недоступно