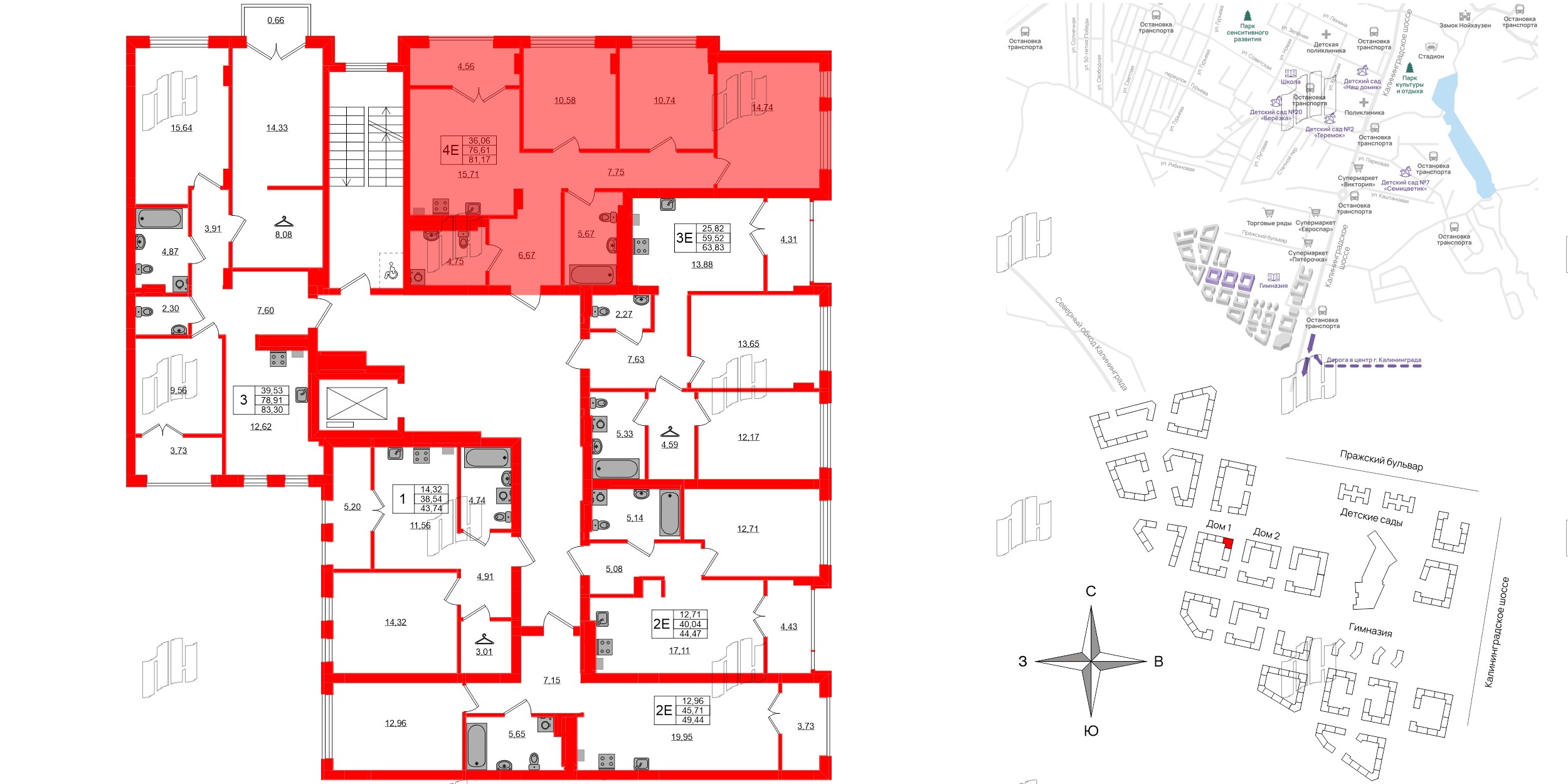
4е комнатная квартира 81.17 м², № 293
ЖК «Включи» , Литер-1 Включи
Срок сдачи — I кв. 2026 г.
| 81,17 м² | 36,06 м² | 15,71 м² | 2.7 м | 3 из 7 |
| Общая площадь | Площадь комнат | Площадь кухни | Высота потолка | Этаж |
|---|
| Два санузла | Лоджия | Отделка — |
Нет
|
|---|
Выберите условия покупки
Забронируйте объект по телефону
Онлайн-бронирование временно недоступно