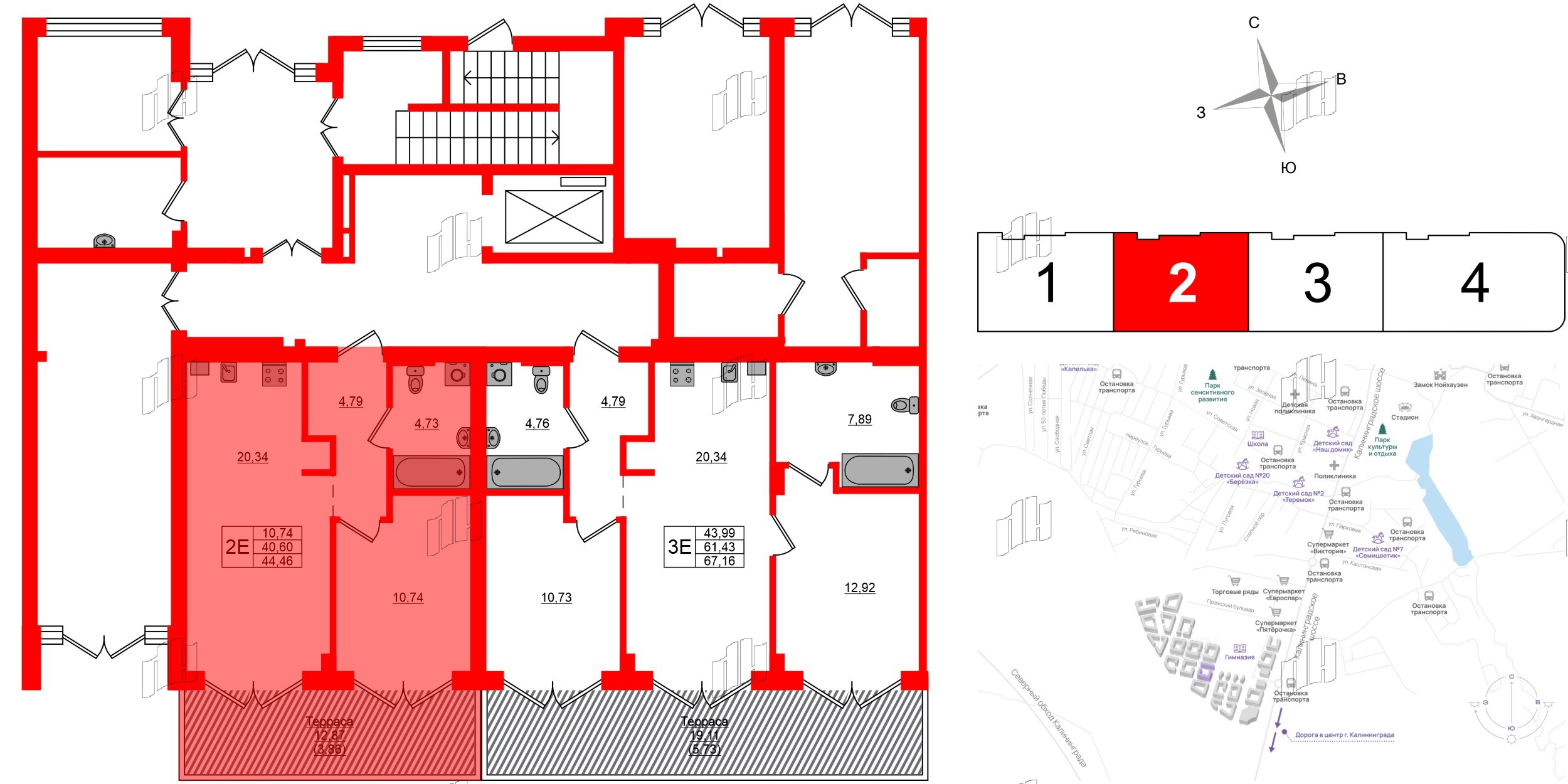
2е комнатная квартира 44.46 м², № 28
ЖК «Включи» , Литер-8 Включи
Срок сдачи — III кв. 2027 г.
| 44,46 м² | 10,74 м² | 20,34 м² | 2.7 м | 1 из 7 |
| Общая площадь | Площадь комнат | Площадь кухни | Высота потолка | Этаж |
|---|
| Тип санузла:  | Совмещенный | Терраса | Отделка — |
Нет
|
|---|
Выберите условия покупки
Забронируйте объект по телефону
Онлайн-бронирование временно недоступно