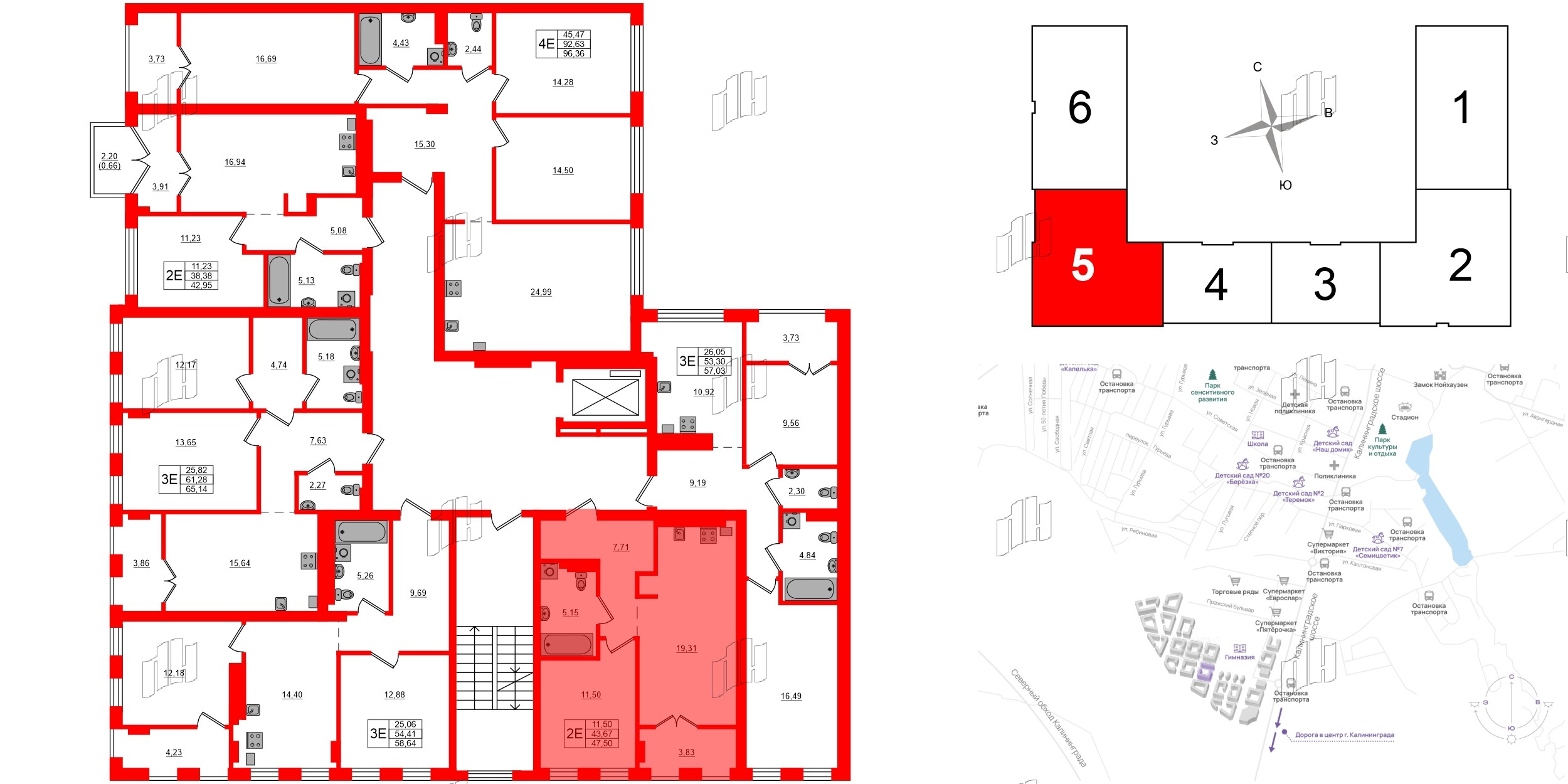
2е комнатная квартира 47.5 м², № 140
ЖК «Включи» , Литер-9 Включи
Срок сдачи — III кв. 2027 г.
| 47,50 м² | 11,50 м² | 19,31 м² | 2.7 м | 3 из 7 |
| Общая площадь | Площадь комнат | Площадь кухни | Высота потолка | Этаж |
|---|
| Тип санузла:  | Совмещенный | Лоджия | Отделка — |
Нет
|
|---|
Выберите условия покупки
Забронируйте объект по телефону
Онлайн-бронирование временно недоступно