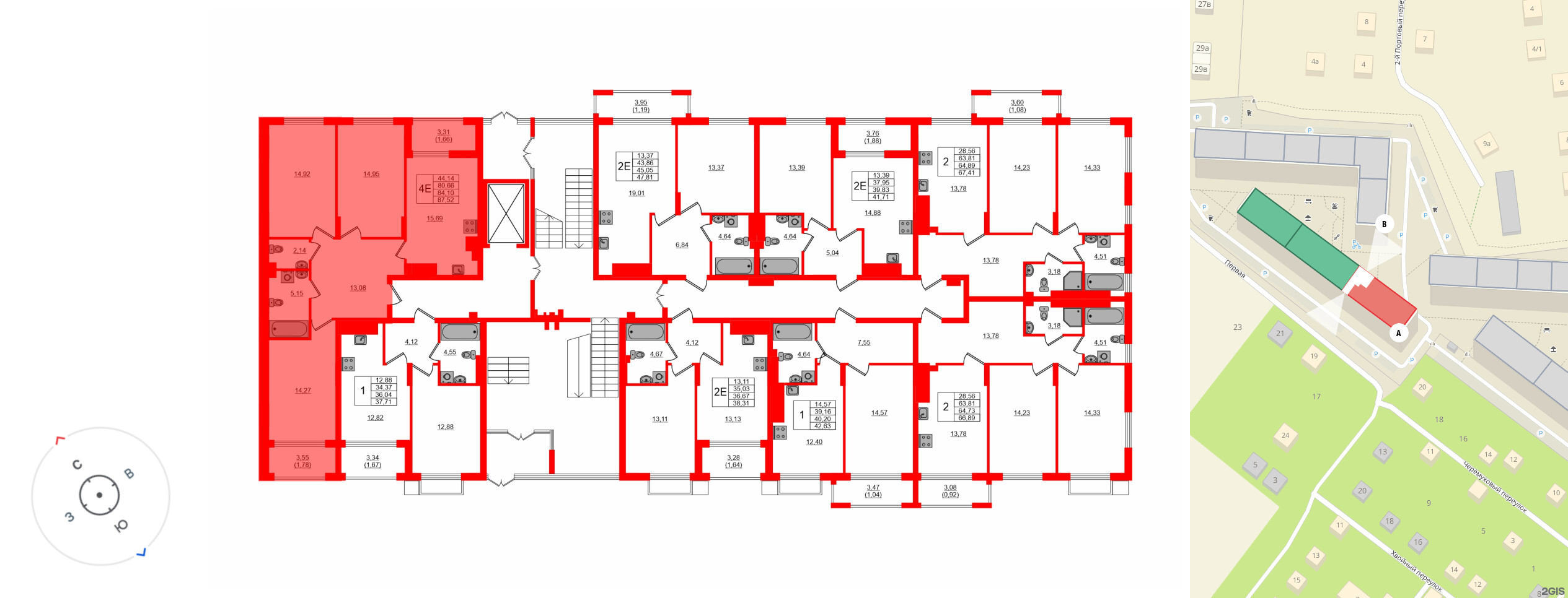
4е комнатная квартира 87.06 м², № 112
ЖК «АЭРО» , АЭРО Терминал A
Срок сдачи — Сдан
| 87,06 м² | 44,14 м² | 15,69 м² | 2.7 м | 1 из 7 |
| Общая площадь | Площадь комнат | Площадь кухни | Высота потолка | Этаж |
|---|
| Тип санузла:  | Совмещенный | Две лоджии | Отделка — |
Нет
|
|---|
Выберите условия покупки
Забронируйте объект по телефону
Онлайн-бронирование временно недоступно