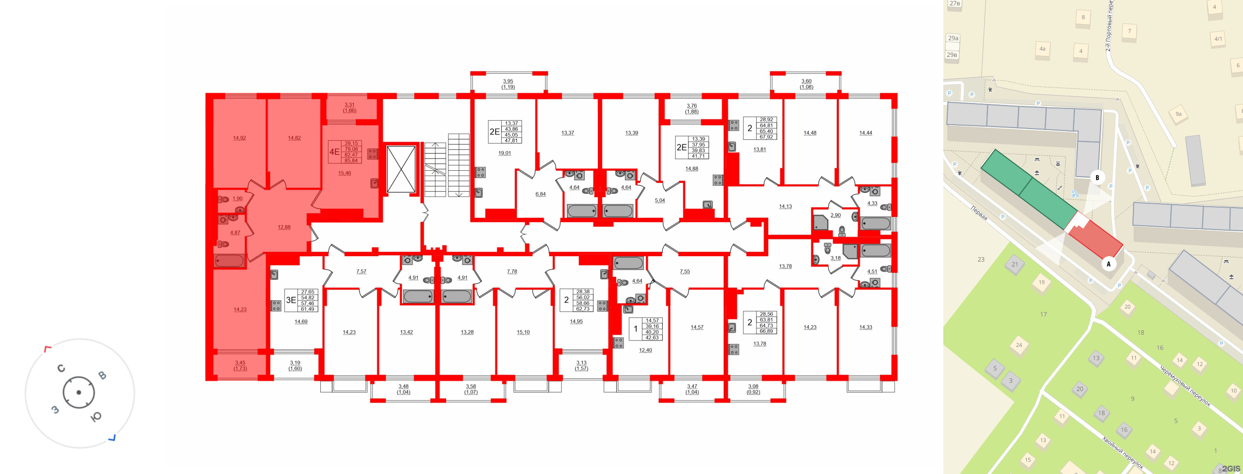
4е комнатная квартира 82.47 м², № 144
ЖК «АЭРО» , АЭРО Терминал A
Срок сдачи — Сдан
| 82,47 м² | 43,97 м² | 15,46 м² | 2.7 м | 5 из 7 |
| Общая площадь | Площадь комнат | Площадь кухни | Высота потолка | Этаж |
|---|
| Тип санузла:  | Совмещенный | Две лоджии | Отделка — |
Нет
|
|---|
Выберите условия покупки
Забронируйте объект по телефону
Онлайн-бронирование временно недоступно