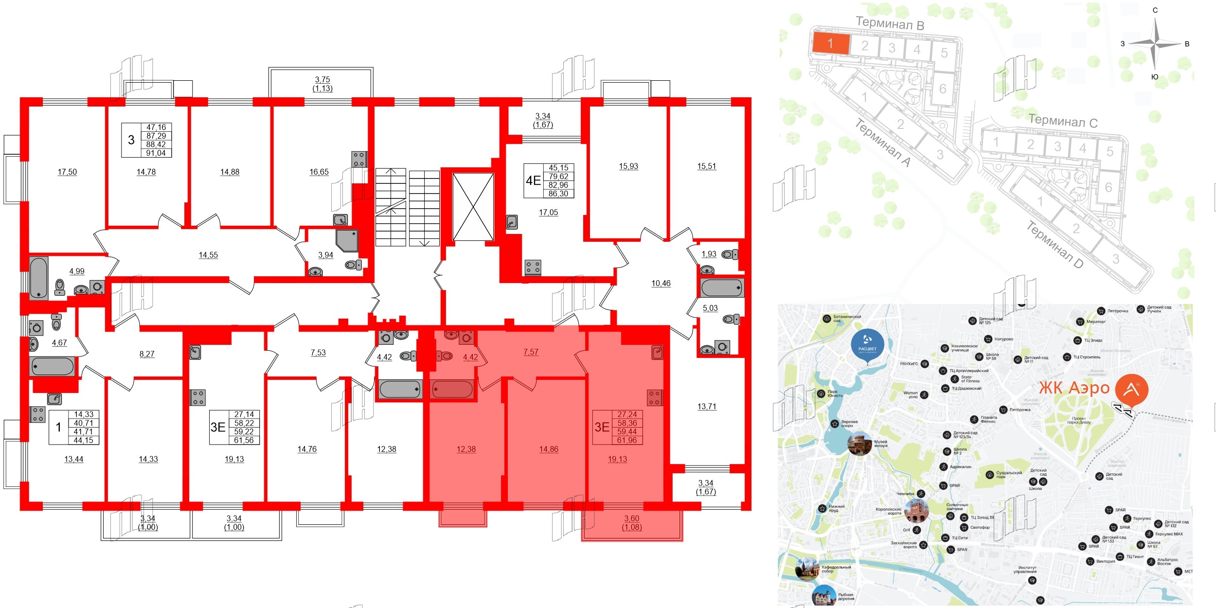
3е комнатная квартира 59.44 м², № 32
ЖК «АЭРО» , АЭРО Терминал B
Срок сдачи — Сдан
| 59,44 м² | 27,24 м² | 19,13 м² | 3.3 м | 7 из 7 |
| Общая площадь | Площадь комнат | Площадь кухни | Высота потолка | Этаж |
|---|
| Тип санузла:  | Совмещенный | Есть балкон | Отделка — |
Нет
|
|---|
Выберите условия покупки
Забронируйте объект по телефону
Онлайн-бронирование временно недоступно