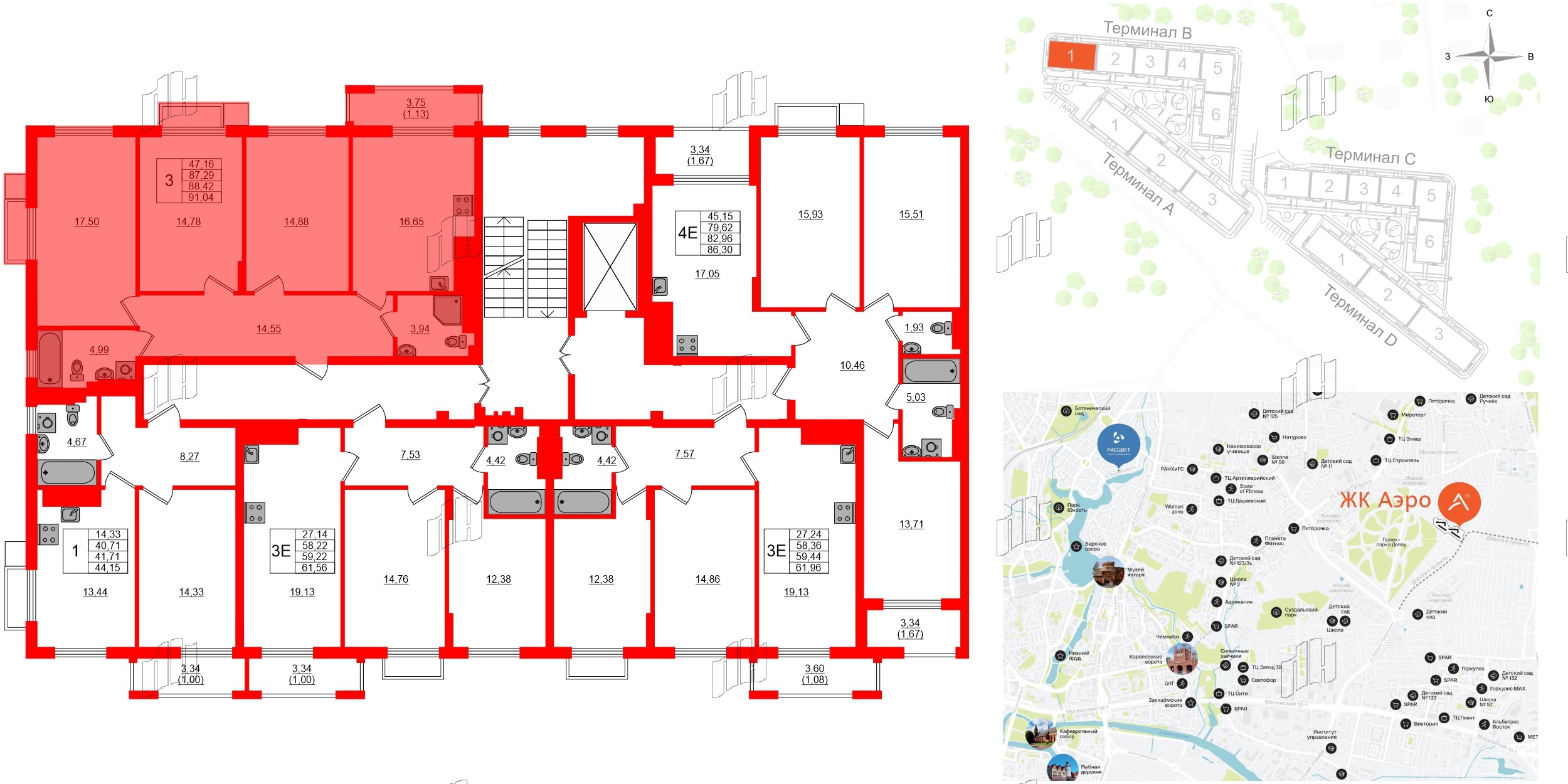
3 комнатная квартира 88.42 м², № 10
ЖК «АЭРО» , АЭРО Терминал B
Срок сдачи — Сдан
| 88,42 м² | 47,16 м² | 16,65 м² | 2.7 м | 2 из 7 |
| Общая площадь | Площадь комнат | Площадь кухни | Высота потолка | Этаж |
|---|
| Тип санузла:  | Совмещенный | Есть балкон | Отделка — |
Нет
|
|---|
Выберите условия покупки
Забронируйте объект по телефону
Онлайн-бронирование временно недоступно