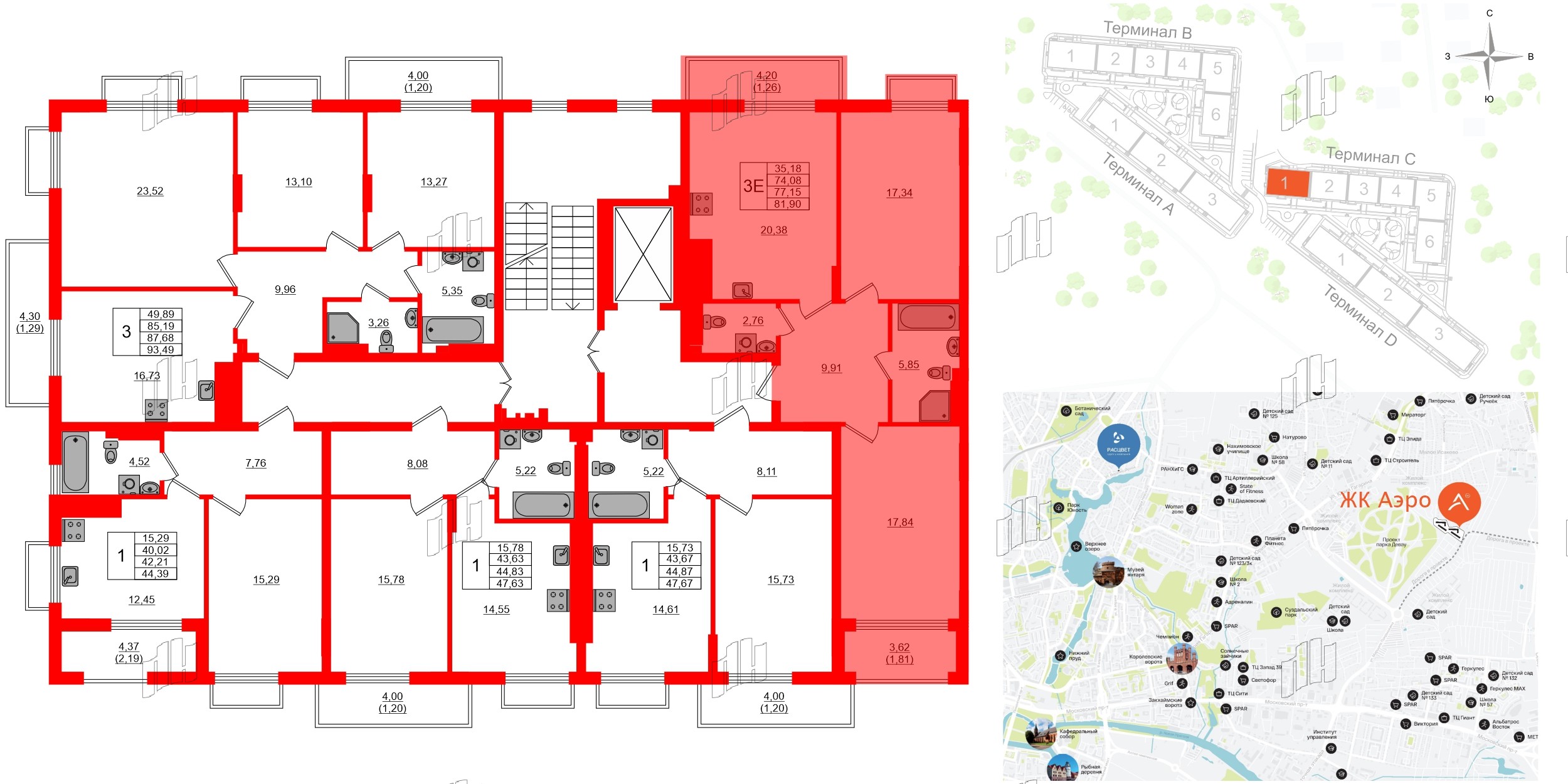
3е комнатная квартира 77.15 м², № 30
ЖК «АЭРО» , АЭРО Терминал C
Срок сдачи — Сдан
| 77,15 м² | 35,18 м² | 20,38 м² | 3.3 м | 7 из 7 |
| Общая площадь | Площадь комнат | Площадь кухни | Высота потолка | Этаж |
|---|
| Тип санузла:  | Совмещенный | Балкон + лоджия | Отделка — |
Нет
|
|---|
Выберите условия покупки
Забронируйте объект по телефону
Онлайн-бронирование временно недоступно