1-комн. кв. 43.6 м² у метро Проспект Ветеранов

за 9 200 000 руб.
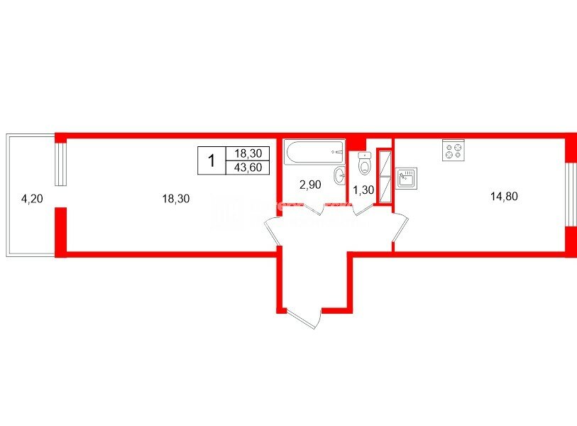
Характеристики
Количество комнат
1
Общая площадь, м2
43.6
Жилая площадь, м2
18.3
Площадь кухни, м2
14.8
Высота потолков
2.75
Этаж/этажность
6/12
Тип дома
Панельный
Адрес
пр-кт Ветеранов, д 169 к 3 стр 1
Право собственности
В собственности
Тип операции
Прямая продажа
Лифт
Да
Балкон
Лоджия
Санузел
Раздельный
Плита
Электрическая

Описание квартиры

Номер объявления: 21256 - назовите его оператору.

В продаже уютная, просторная однокомнатная квартира в 12-ти этажном доме от надежного застройщика Setl Group.

В 5 минутах от дома - автобусная остановка. На автобусе 10 минут до станции Сергиево, откуда электричкой за 25 минут можно добраться до метро "Балтийская". Также автобусом за 30 минут можно доехать до метро "Проспект Ветеранов" и "Ленинский проспект" - автобусы ходят каждые 5 минут. До набережной Финского залива у ЖК "Балтийская Жемчужина" - 2025 минут на транспорте.

Развитая инфраструктура.
В 2 минутах пешком - ТЦ "Солнечный": магазины, аптеки, кофейни и пункты выдачи.

Во дворе - подземная парковка. В доме есть пассажирский и грузовой лифт. Закрытая территория, детские и спортивные площадки во дворе.

У квартиры функциональная планировка - распашонка.
Из окна приятный вид на тихий двор и на улицу. Квартира хорошо проветривается.
В квартире светло за счёт удачного расположения и больших окон.
Отопление центральное с терморегуляцией.

Без обременений. Один взрослый собственник.
Ждем Вас на просмотр!

Похожие квартиры
1-комн. кв. 38.5 м² 3/13 этаж
1-комн. кв. 38.5 м² 3/13 этаж
1-комн. кв. 38.5 м² 3/13 этаж
1-комн. кв. 38.5 м² 3/13 этаж
1-комн. кв. 38.5 м² 3/13 этаж
1-комн. кв. 38.5 м² 3/13 этаж
9 300 000 руб.
пр-кт Ветеранов, д 171
1-комн. кв. 38.2 м² 13/22 этаж
1-комн. кв. 38.2 м² 13/22 этаж
1-комн. кв. 38.2 м² 13/22 этаж
1-комн. кв. 38.2 м² 13/22 этаж
1-комн. кв. 38.2 м² 13/22 этаж
1-комн. кв. 38.2 м² 13/22 этаж
9 450 000 руб.
Ленинский пр-кт, д 78
1-комн. кв. 33.4 м² 4/4 этаж
1-комн. кв. 33.4 м² 4/4 этаж
1-комн. кв. 33.4 м² 4/4 этаж
1-комн. кв. 33.4 м² 4/4 этаж
1-комн. кв. 33.4 м² 4/4 этаж
1-комн. кв. 33.4 м² 4/4 этаж
8 200 000 руб.
Проспект Ветеранов
пр-кт Ветеранов, д 210
1-комн. кв. 42.7 м² 14/25 этаж
1-комн. кв. 42.7 м² 14/25 этаж
1-комн. кв. 42.7 м² 14/25 этаж
1-комн. кв. 42.7 м² 14/25 этаж
1-комн. кв. 42.7 м² 14/25 этаж
1-комн. кв. 42.7 м² 14/25 этаж
10 500 000 руб.
Юго-западная (2015)
пр-кт Кузнецова, д 11 к 1 литера А
1-комн. кв. 38.1 м² 2/17 этаж
1-комн. кв. 38.1 м² 2/17 этаж
1-комн. кв. 38.1 м² 2/17 этаж
1-комн. кв. 38.1 м² 2/17 этаж
1-комн. кв. 38.1 м² 2/17 этаж
1-комн. кв. 38.1 м² 2/17 этаж
7 200 000 руб.
Юго-западная (2015)
пр-кт Героев, д 24 к 3 литера А
1-комн. кв. 44.6 м² 2/9 этаж
1-комн. кв. 44.6 м² 2/9 этаж
1-комн. кв. 44.6 м² 2/9 этаж
1-комн. кв. 44.6 м² 2/9 этаж
1-комн. кв. 44.6 м² 2/9 этаж
1-комн. кв. 44.6 м² 2/9 этаж
9 200 000 руб.
Проспект Ветеранов
ул Стойкости, д 7
1-комн. кв. 36.2 м² 1/18 этаж
1-комн. кв. 36.2 м² 1/18 этаж
1-комн. кв. 36.2 м² 1/18 этаж
1-комн. кв. 36.2 м² 1/18 этаж
1-комн. кв. 36.2 м² 1/18 этаж
1-комн. кв. 36.2 м² 1/18 этаж
9 360 000 руб.
Приморская
ул Вадима Шефнера, д 12 к 1 стр 1
1-комн. кв. 35 м² 3/13 этаж
1-комн. кв. 35 м² 3/13 этаж
1-комн. кв. 35 м² 3/13 этаж
1-комн. кв. 35 м² 3/13 этаж
1-комн. кв. 35 м² 3/13 этаж
1-комн. кв. 35 м² 3/13 этаж
9 400 000 руб.
Академическая
ул Верности, д 6
1-комн. кв. 33.4 м² 16/25 этаж
1-комн. кв. 33.4 м² 16/25 этаж
1-комн. кв. 33.4 м² 16/25 этаж
1-комн. кв. 33.4 м² 16/25 этаж
1-комн. кв. 33.4 м² 16/25 этаж
1-комн. кв. 33.4 м² 16/25 этаж
9 450 000 руб.
ул Учительская, д 18
1-комн. кв. 33 м² 4/12 этаж
1-комн. кв. 33 м² 4/12 этаж
1-комн. кв. 33 м² 4/12 этаж
1-комн. кв. 33 м² 4/12 этаж
1-комн. кв. 33 м² 4/12 этаж
1-комн. кв. 33 м² 4/12 этаж
9 480 000 руб.
Торфяная дорога, д 15 к 3 стр 1
1-комн. кв. 38.8 м² 3/5 этаж
1-комн. кв. 38.8 м² 3/5 этаж
1-комн. кв. 38.8 м² 3/5 этаж
1-комн. кв. 38.8 м² 3/5 этаж
1-комн. кв. 38.8 м² 3/5 этаж
1-комн. кв. 38.8 м² 3/5 этаж
9 500 000 руб.
Купчино
поселок Шушары, ул Нины Петровой, д 7 к 1 стр 1
1-комн. кв. 32.3 м² 12/13 этаж
1-комн. кв. 32.3 м² 12/13 этаж
1-комн. кв. 32.3 м² 12/13 этаж
1-комн. кв. 32.3 м² 12/13 этаж
1-комн. кв. 32.3 м² 12/13 этаж
1-комн. кв. 32.3 м² 12/13 этаж
8 600 000 руб.
Политехническая
Тихорецкий пр-кт, д 25 к 4 литера А
1-комн. кв. 35.8 м² 22/25 этаж
1-комн. кв. 35.8 м² 22/25 этаж
1-комн. кв. 35.8 м² 22/25 этаж
1-комн. кв. 35.8 м² 22/25 этаж
1-комн. кв. 35.8 м² 22/25 этаж
1-комн. кв. 35.8 м² 22/25 этаж
9 900 000 руб.
Девяткино
г Мурино, Привокзальная пл, д 1-А
1-комн. кв. 28.9 м² 5/9 этаж
1-комн. кв. 28.9 м² 5/9 этаж
1-комн. кв. 28.9 м² 5/9 этаж
1-комн. кв. 28.9 м² 5/9 этаж
1-комн. кв. 28.9 м² 5/9 этаж
1-комн. кв. 28.9 м² 5/9 этаж
8 500 000 руб.
Парк Победы
ул Кузнецовская, д 10
1-комн. кв. 30.9 м² 2/5 этаж
1-комн. кв. 30.9 м² 2/5 этаж
1-комн. кв. 30.9 м² 2/5 этаж
1-комн. кв. 30.9 м² 2/5 этаж
1-комн. кв. 30.9 м² 2/5 этаж
1-комн. кв. 30.9 м² 2/5 этаж
8 500 000 руб.
ул Хлопина, д 9 к 3 литера А
1-комн. кв. 41.9 м² 6/23 этаж
1-комн. кв. 41.9 м² 6/23 этаж
1-комн. кв. 41.9 м² 6/23 этаж
1-комн. кв. 41.9 м² 6/23 этаж
1-комн. кв. 41.9 м² 6/23 этаж
1-комн. кв. 41.9 м² 6/23 этаж
8 500 000 руб.
Ломоносовская
ул Русановская, д 11
Перейти к сравнению