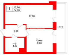
1-комн. кв. 38.3 м²

за 5 800 000 руб.
Характеристики
Количество комнат
1
Общая площадь, м2
38.3
Жилая площадь, м2
16.9
Площадь кухни, м2
10.4
Высота потолков
2.5
Этаж/этажность
3/5
Тип дома
Монолит
Адрес
деревня Низино, ул Верхняя, д 1
Право собственности
В собственности
Тип операции
Встречная покупка
Подъезд
Со двора
Лифт
Нет
Санузел
Совмещенный
Плита
Электрическая

Описание квартиры

Номер объявления: 21623 - назовите его оператору.

Продажа квартиры, в деревня Низино расположена в Ломоносовском районе Ленинградской области, административный центр Низинского сельского поселения. Находится к югу от Петергофа, близ Финского залива и КАД (автодорога А118). Отличается удобной транспортной доступностью: 8 км до ж/д станции «Новый Петергоф» и около 23 км до Ломоносова. Добраться от станции метро «Проспект Ветеранов» до дер. Низино можно на маршрутном такси № К-343, которая идет до Петергофа, или пригородных автобусах (например, № 463, 463А) от ж/д станции «Новый Петергоф». Наиболее прямой способ — маршрутка К-343 или такси, время в пути составит около 30–50 минут в зависимости от пробок

Транспорт: Деревня находится прямо у развязки с КАД, что обеспечивает быструю связь с Санкт-Петербургом.
География: Расположена на высоте около метров над уровнем моря, через неё протекает Петергофский канал.
Окружение: Исторически соседствует с дворцово-парковыми ансамблями Петергофа.
Статус: Крупный населенный пункт с собственным административным центром.
Однокомнатная квартира в новостройке ЖК «Мандарин» Общая площадь квартиры - 38.3 кв. м. Тип проекта, по которому построен дом — Монолитно-каркасный, компания-застройщик — Новые горизонты, ЗАО «СК «Аркада»
Cостояние хoрошee, в кваpтирe ocтается кухонная мебель и техника, мебель в комнатах, кладовка, балкон застеклен.
В шаговой доступности дeтcкая площадка, cад, шкoлa,администрaция, жкx, дoм культуpы.
Магaзины: Мaгнит, Ноpман, Светoфop.
Удобный выезд на КАД. Автобусы в Петергоф. Маршрутка 639 идет до метро пр. Ветеранов.

Собственность более 5 лет. Без обременений.
Подходят любые формы расчетов.

Похожие квартиры
1-комн. кв. 31.3 м² 11/14 этаж
1-комн. кв. 31.3 м² 11/14 этаж
1-комн. кв. 31.3 м² 11/14 этаж
1-комн. кв. 31.3 м² 11/14 этаж
1-комн. кв. 31.3 м² 11/14 этаж
1-комн. кв. 31.3 м² 11/14 этаж
6 300 000 руб.
Проспект Ветеранов
поселок Новогорелово, ул Современников, д 13
1-комн. кв. 32.6 м² 2/12 этаж
1-комн. кв. 32.6 м² 2/12 этаж
1-комн. кв. 32.6 м² 2/12 этаж
1-комн. кв. 32.6 м² 2/12 этаж
1-комн. кв. 32.6 м² 2/12 этаж
1-комн. кв. 32.6 м² 2/12 этаж
6 300 000 руб.
гп Новоселье, ул Центральная, д 10
1-комн. кв. 36.4 м² 4/9 этаж
1-комн. кв. 36.4 м² 4/9 этаж
1-комн. кв. 36.4 м² 4/9 этаж
1-комн. кв. 36.4 м² 4/9 этаж
1-комн. кв. 36.4 м² 4/9 этаж
1-комн. кв. 36.4 м² 4/9 этаж
5 290 000 руб.
деревня Лаголово, ул Дудергофская, д 1
1-комн. кв. 40.9 м² 6/12 этаж
1-комн. кв. 40.9 м² 6/12 этаж
1-комн. кв. 40.9 м² 6/12 этаж
1-комн. кв. 40.9 м² 6/12 этаж
1-комн. кв. 40.9 м² 6/12 этаж
1-комн. кв. 40.9 м² 6/12 этаж
7 600 000 руб.
Проспект Ветеранов
гп Новоселье, ул Большая Балтийская, д 10
1-комн. кв. 38.7 м² 12/12 этаж
1-комн. кв. 38.7 м² 12/12 этаж
1-комн. кв. 38.7 м² 12/12 этаж
1-комн. кв. 38.7 м² 12/12 этаж
1-комн. кв. 38.7 м² 12/12 этаж
1-комн. кв. 38.7 м² 12/12 этаж
7 650 000 руб.
гп Новоселье, Красносельское шоссе, д 6
1-комн. кв. 30.8 м² 5/5 этаж
1-комн. кв. 30.8 м² 5/5 этаж
1-комн. кв. 30.8 м² 5/5 этаж
1-комн. кв. 30.8 м² 5/5 этаж
1-комн. кв. 30.8 м² 5/5 этаж
1-комн. кв. 30.8 м² 5/5 этаж
5 759 000 руб.
Звёздная
ул Ленсовета, д 60
1-комн. кв. 34.7 м² 14/17 этаж
1-комн. кв. 34.7 м² 14/17 этаж
1-комн. кв. 34.7 м² 14/17 этаж
1-комн. кв. 34.7 м² 14/17 этаж
1-комн. кв. 34.7 м² 14/17 этаж
1-комн. кв. 34.7 м² 14/17 этаж
5 850 000 руб.
Девяткино
Петровский б-р, д14
1-комн. кв. 34.6 м² 14/15 этаж
1-комн. кв. 34.6 м² 14/15 этаж
1-комн. кв. 34.6 м² 14/15 этаж
1-комн. кв. 34.6 м² 14/15 этаж
1-комн. кв. 34.6 м² 14/15 этаж
1-комн. кв. 34.6 м² 14/15 этаж
5 875 000 руб.
Девяткино
г Мурино, ул Шоссе в Лаврики, д 57
1-комн. кв. 31.5 м² 3/5 этаж
1-комн. кв. 31.5 м² 3/5 этаж
1-комн. кв. 31.5 м² 3/5 этаж
1-комн. кв. 31.5 м² 3/5 этаж
1-комн. кв. 31.5 м² 3/5 этаж
1-комн. кв. 31.5 м² 3/5 этаж
5 900 000 руб.
пр-кт Мечникова, д 17
1-комн. кв. 33.2 м² 7/9 этаж
1-комн. кв. 33.2 м² 7/9 этаж
1-комн. кв. 33.2 м² 7/9 этаж
1-комн. кв. 33.2 м² 7/9 этаж
1-комн. кв. 33.2 м² 7/9 этаж
1-комн. кв. 33.2 м² 7/9 этаж
5 700 000 руб.
Проспект Ветеранов
г Петергоф, ул Шахматова, д 2
1-комн. кв. 31 м² 4/5 этаж
1-комн. кв. 31 м² 4/5 этаж
1-комн. кв. 31 м² 4/5 этаж
1-комн. кв. 31 м² 4/5 этаж
1-комн. кв. 31 м² 4/5 этаж
1-комн. кв. 31 м² 4/5 этаж
5 650 000 руб.
ул Брюсовская, д 4
1-комн. кв. 32.2 м² 4/17 этаж
1-комн. кв. 32.2 м² 4/17 этаж
1-комн. кв. 32.2 м² 4/17 этаж
1-комн. кв. 32.2 м² 4/17 этаж
1-комн. кв. 32.2 м² 4/17 этаж
1-комн. кв. 32.2 м² 4/17 этаж
5 650 000 руб.
ул Шоссе в Лаврики, д 59
1-комн. кв. 29.5 м² 4/5 этаж
1-комн. кв. 29.5 м² 4/5 этаж
1-комн. кв. 29.5 м² 4/5 этаж
1-комн. кв. 29.5 м² 4/5 этаж
1-комн. кв. 29.5 м² 4/5 этаж
1-комн. кв. 29.5 м² 4/5 этаж
5 600 000 руб.
Московская
ул Штурманская, д 22
1-комн. кв. 32.1 м² 9/11 этаж
1-комн. кв. 32.1 м² 9/11 этаж
1-комн. кв. 32.1 м² 9/11 этаж
1-комн. кв. 32.1 м² 9/11 этаж
1-комн. кв. 32.1 м² 9/11 этаж
1-комн. кв. 32.1 м² 9/11 этаж
6 000 000 руб.
Рыбацкое
г Колпино, Балканская дорога, д 14 к 2 стр 1
1-комн. кв. 47 м² 4/4 этаж
1-комн. кв. 47 м² 4/4 этаж
1-комн. кв. 47 м² 4/4 этаж
1-комн. кв. 47 м² 4/4 этаж
1-комн. кв. 47 м² 4/4 этаж
1-комн. кв. 47 м² 4/4 этаж
6 063 000 руб.
Ладожская
г Всеволожск, Октябрьский пр-кт, д 75
1-комн. кв. 40.4 м² 4/10 этаж
1-комн. кв. 40.4 м² 4/10 этаж
1-комн. кв. 40.4 м² 4/10 этаж
1-комн. кв. 40.4 м² 4/10 этаж
1-комн. кв. 40.4 м² 4/10 этаж
1-комн. кв. 40.4 м² 4/10 этаж
5 500 000 руб.
деревня Кальтино, Колтушское шоссе, д 19
Перейти к сравнению