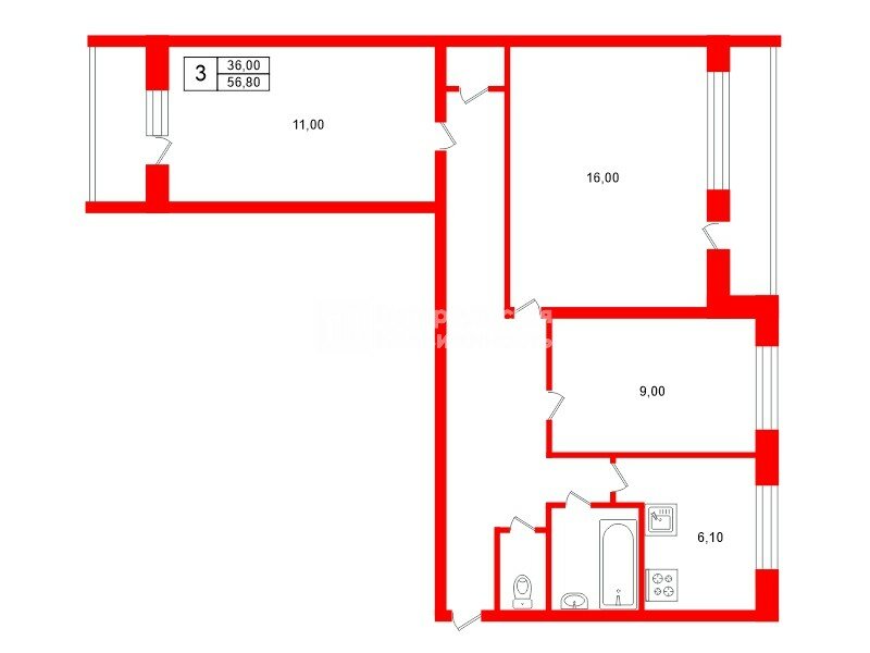
3-комн. кв. 56.8 м²

за 11 700 000 руб.
Характеристики
Количество комнат
3
Общая площадь, м2
56.8
Жилая площадь, м2
36
Площадь кухни, м2
6.1
Этаж/этажность
9/10
Тип дома
Индивидуальный проект
Адрес
Комендантский пр-кт, д 27
Право собственности
В собственности
Тип операции
Прямая продажа
Подъезд
Со двора
Лифт
Да
Санузел
Раздельный
Плита
Газовая

Описание квартиры

Номер объявления: 21702 - назовите его оператору.

Предлагается к продаже 3х к квартира в современном панельном доме, расположенном в экологически чистом, благоустроенном и активно развивающемся Приморском районе.
Удобное транспортное сообщение, до станции метро "Комендантский проспект" 15 минут пешком, рядом выезд на КАД и ЗСД, что позволяет быстро добраться до любой точки города и области.
Для прогулок и отдыха в шаговой доступности расположен зеленый массив Парк «Озеро Долгое», с благоустроенными прудами и прогулочными дорожками. Рядом с Вашим домом - широкие улицы, новые дома, развитая инфраструктура: сетевые магазины, аптеки, кафе-пекарни, салоны красоты, отделения банков, медицинские центры, пункты выдачи интернет-магазинов,
поликлиника, школы и детские сады.
Функциональная планировка квартиры включает в себя три изолированные комнаты, в двух комнатах застекленные лоджии, просторная прихожая, есть кладовка. В квартире солнечно и уютно, вид из окон на две стороны во двор.
Квартира без обременений, без долгов, подходит под любой вид оплаты. В собственности более 15 лет, чистая юридическая история.
С 9:00 до 21:00 готова ответить на все интересующие Вас вопросы. Организую просмотр в удобное время!

Похожие квартиры
3-комн. кв. 81 м² 1/10 этаж
3-комн. кв. 81 м² 1/10 этаж
3-комн. кв. 81 м² 1/10 этаж
3-комн. кв. 81 м² 1/10 этаж
3-комн. кв. 81 м² 1/10 этаж
3-комн. кв. 81 м² 1/10 этаж
12 000 000 руб.
Комендантский Проспект
Богатырский пр-кт, д 47
3-комн. кв. 67.8 м² 1/10 этаж
3-комн. кв. 67.8 м² 1/10 этаж
3-комн. кв. 67.8 м² 1/10 этаж
3-комн. кв. 67.8 м² 1/10 этаж
3-комн. кв. 67.8 м² 1/10 этаж
3-комн. кв. 67.8 м² 1/10 этаж
13 000 000 руб.
Земский пер, д 10
3-комн. кв. 69 м² 8/14 этаж
3-комн. кв. 69 м² 8/14 этаж
3-комн. кв. 69 м² 8/14 этаж
3-комн. кв. 69 м² 8/14 этаж
3-комн. кв. 69 м² 8/14 этаж
3-комн. кв. 69 м² 8/14 этаж
13 500 000 руб.
ул Школьная, д 88
3-комн. кв. 73.9 м² 2/18 этаж
3-комн. кв. 73.9 м² 2/18 этаж
3-комн. кв. 73.9 м² 2/18 этаж
3-комн. кв. 73.9 м² 2/18 этаж
3-комн. кв. 73.9 м² 2/18 этаж
3-комн. кв. 73.9 м² 2/18 этаж
11 580 000 руб.
Гражданский Проспект
Муринская дорога, д 68
3-комн. кв. 74.3 м² 3/9 этаж
3-комн. кв. 74.3 м² 3/9 этаж
3-комн. кв. 74.3 м² 3/9 этаж
3-комн. кв. 74.3 м² 3/9 этаж
3-комн. кв. 74.3 м² 3/9 этаж
3-комн. кв. 74.3 м² 3/9 этаж
11 900 000 руб.
Озерки
ул Есенина, д 11
3-комн. кв. 73.6 м² 3/8 этаж
3-комн. кв. 73.6 м² 3/8 этаж
3-комн. кв. 73.6 м² 3/8 этаж
3-комн. кв. 73.6 м² 3/8 этаж
3-комн. кв. 73.6 м² 3/8 этаж
3-комн. кв. 73.6 м² 3/8 этаж
12 000 000 руб.
Проспект Ветеранов
ул Освобождения, д 25 к 1 литера А
3-комн. кв. 76.9 м² 1/9 этаж
3-комн. кв. 76.9 м² 1/9 этаж
3-комн. кв. 76.9 м² 1/9 этаж
3-комн. кв. 76.9 м² 1/9 этаж
3-комн. кв. 76.9 м² 1/9 этаж
3-комн. кв. 76.9 м² 1/9 этаж
12 350 000 руб.
тер Детскосельский (поселок Шушары), ул Центральная, д 8 к 1 литера А
3-комн. кв. 65.3 м² 2/9 этаж
3-комн. кв. 65.3 м² 2/9 этаж
3-комн. кв. 65.3 м² 2/9 этаж
3-комн. кв. 65.3 м² 2/9 этаж
3-комн. кв. 65.3 м² 2/9 этаж
3-комн. кв. 65.3 м² 2/9 этаж
11 000 000 руб.
Пр.Большевиков
пр-кт Солидарности, д 8
3-комн. кв. 75 м² 1/9 этаж
3-комн. кв. 75 м² 1/9 этаж
3-комн. кв. 75 м² 1/9 этаж
3-комн. кв. 75 м² 1/9 этаж
3-комн. кв. 75 м² 1/9 этаж
3-комн. кв. 75 м² 1/9 этаж
12 500 000 руб.
ул Будапештская, д 101
3-комн. кв. 72.1 м² 10/10 этаж
3-комн. кв. 72.1 м² 10/10 этаж
3-комн. кв. 72.1 м² 10/10 этаж
3-комн. кв. 72.1 м² 10/10 этаж
3-комн. кв. 72.1 м² 10/10 этаж
3-комн. кв. 72.1 м² 10/10 этаж
12 500 000 руб.
Шлиссельбургский пр-кт, д 36 к 1 литера А
3-комн. кв. 75 м² 10/13 этаж
3-комн. кв. 75 м² 10/13 этаж
3-комн. кв. 75 м² 10/13 этаж
3-комн. кв. 75 м² 10/13 этаж
3-комн. кв. 75 м² 10/13 этаж
3-комн. кв. 75 м² 10/13 этаж
12 600 000 руб.
Девяткино
г Мурино, ул Оборонная, д 37
3-комн. кв. 69.4 м² 1/6 этаж
3-комн. кв. 69.4 м² 1/6 этаж
3-комн. кв. 69.4 м² 1/6 этаж
3-комн. кв. 69.4 м² 1/6 этаж
3-комн. кв. 69.4 м² 1/6 этаж
3-комн. кв. 69.4 м² 1/6 этаж
10 800 000 руб.
Купчино
тер Славянка (поселок Шушары), ул Галицкая, д 6
3-комн. кв. 62.4 м² 7/9 этаж
3-комн. кв. 62.4 м² 7/9 этаж
3-комн. кв. 62.4 м² 7/9 этаж
3-комн. кв. 62.4 м² 7/9 этаж
3-комн. кв. 62.4 м² 7/9 этаж
3-комн. кв. 62.4 м² 7/9 этаж
10 500 000 руб.
Ладожская
ул Коллонтай, д 47 к 5 литера А
3-комн. кв. 65.1 м² 3/3 этаж
3-комн. кв. 65.1 м² 3/3 этаж
3-комн. кв. 65.1 м² 3/3 этаж
3-комн. кв. 65.1 м² 3/3 этаж
3-комн. кв. 65.1 м² 3/3 этаж
3-комн. кв. 65.1 м² 3/3 этаж
10 500 000 руб.
ул Ткачей, д 10
3-комн. кв. 60 м² 3/5 этаж
3-комн. кв. 60 м² 3/5 этаж
3-комн. кв. 60 м² 3/5 этаж
3-комн. кв. 60 м² 3/5 этаж
3-комн. кв. 60 м² 3/5 этаж
3-комн. кв. 60 м² 3/5 этаж
10 500 000 руб.
ул Бестужевская, д 22
3-комн. кв. 71 м² 9/9 этаж
3-комн. кв. 71 м² 9/9 этаж
3-комн. кв. 71 м² 9/9 этаж
3-комн. кв. 71 м² 9/9 этаж
3-комн. кв. 71 м² 9/9 этаж
3-комн. кв. 71 м² 9/9 этаж
12 950 000 руб.
пр-кт Ветеранов, д 76
Перейти к сравнению